PCI Express
Learn about PCI Express (PCIe) adapters and slots.
Note: Although PCI-X adapters are not supported on POWER9 processor-based systems, the following information and figure
is for informational purposes.
PCI Express (PCIe) adapters
use a different type of slot than Peripheral Component Interconnect (PCI) and Peripheral Component
Interconnect-X (PCI-X) adapters. If you attempt to force an adapter into the wrong type of slot, you
might damage the adapter or the slot. A PCI adapter can be installed in a PCI-X slot, and a PCI-X
adapter can be installed in a PCI adapter slot. A PCIe adapter cannot be installed in a PCI or PCI-X
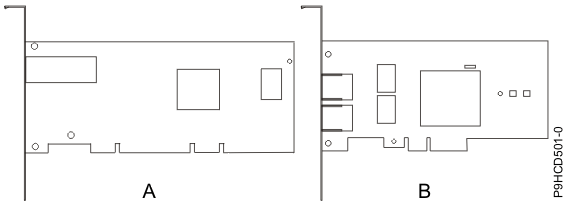
adapter slot, and a PCI or PCI-X adapter cannot be installed in a PCIe slot. The following
illustration shows an example of a PCI-X adapter (A) next to a PCIe 4x
(B) adapter. 
PCIe adapters and slots come in 4 different sizes: 1x, 4x, 8x, and 16x. Smaller size adapters do
fit in larger slots, but larger size adapters do not fit in smaller slots. Table 1 shows PCIe slot compatibility.
| 1x slot | 4x slot | 8x slot | 16x slot | |
|---|---|---|---|---|
| 1x adapter | Supported | Supported | Supported | Supported |
| 4x adapter | Not supported | Supported | Supported | Supported |
| 8x adapter | Not supported | Not supported | Supported | Supported |
| 16x adapter | Not supported | Not supported | Not supported | Supported |